販売価格が下がりました!
吹上駅徒歩16分の全3棟新築住宅です!
小中学校まで徒歩8分ですので、お子様の通学も安心です♪
住宅性能評価W取得!耐震等級3(最高等級)の地震に強い家です!
| 物件名 | 鴻巣市筑波2丁目 新築全3棟 |
|---|---|
| 所在地 | 鴻巣市筑波2丁目 |
| 交通 | JR高崎線吹上駅 徒歩16分 |
| 土地面積 | 155.51㎡(47.04坪)~175.95㎡(53.22坪) |
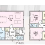
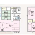
| 建物面積 | 92.34㎡(27.93坪)~97.60㎡(29.52坪) |
| 間取り | 4LDK |
| 築年月 | 2025/12 |
| 価格 | 2,480万円 〜2,680万円 |












